Belgioioso Case Servizi Immobiliari di Orsi Mauro
338 4693976
Casa indipendente in vendita a Santa Cristina e Bissone
Santa Cristina e Bissone
Zona: - Via Roma, 17
€ 82.000
#131 mq
#2
#2

Casa indipendente in vendita a Santa Cristina e Bissone Santa Cristina e Bissone - Via Roma, 17

Descrizione
Cod. 1017

🏡 Indipendenza, giardino privato e spazi utili… tutto nella stessa casa!
📍 Santa Cristina e Bissone (PV)
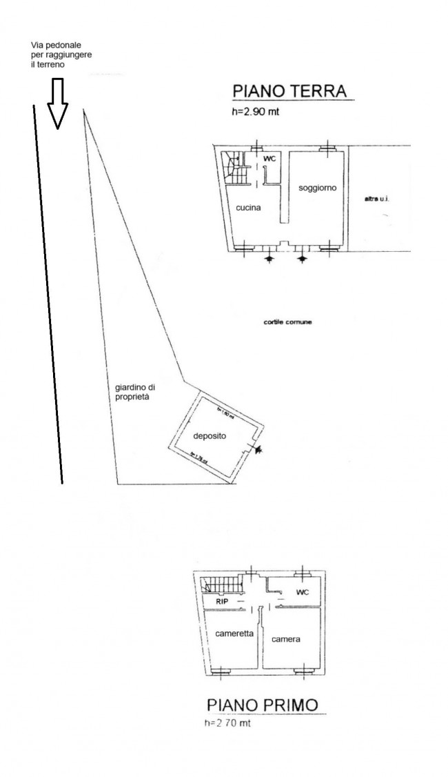
In un contesto tranquillo e ben servito, ti presentiamo una piacevole abitazione di corte sviluppata su due livelli, pensata per chi desidera vivere in un ambiente sereno senza rinunciare alla comodità degli spazi.
Al piano terra si accede alla zona giorno, con un accogliente soggiorno dotato di camino che regala un'atmosfera familiare e una cucina abitabile che affaccia sul cortile interno. È presente anche un pratico bagno di servizio.
La zona notte, al piano superiore, ospita due camere da letto ben distribuite, un secondo bagno e un utile ripostiglio.
La proprietà comprende inoltre un locale ad uso deposito o cantina, perfetto come ricovero attrezzi o per chi ama dedicarsi a piccoli hobby, con adiacente un'area esterna recintata di circa 60 mq da personalizzare secondo le proprie esigenze.
A completamento, un ulteriore terreno di circa 350 mq, situato a pochi passi dalla casa, perfetto per chi sogna un orto, un piccolo giardino o un angolo relax per pranzi e grigliate all'aperto.
🌟 Caratteristiche:
• Riscaldamento autonomo
• Infissi in legno con doppi vetri
• Zero spese condominiali
• Abitabile da subito
• Libero in 3 mesi
☎️ Per informazioni o per fissare un appuntamento:
Mauro Orsi – Orsi Immobiliare Belgioioso
Tel. 0382 970893
Possibilità di mutuo personalizzato con i nostri consulenti del credito.

Le informazioni riportate potrebbero essere soggette a modifiche e non costituiscono vincolo contrattuale. Immobile disponibile salvo trattative in corso.

Classe energetica: G EP glnr: 330.21 kwh/㎡
€ 82.000
Caratteristiche
Scopri le caratteristiche di questo immobile
Ubicazione immobile
Contattaci


Ultimo aggiornamento 09/12/2025
×
Codice
Contratto
Scegli dove cercare
Tipologia - multiscelta
Prezzo


Totale mq


Locali minimi
Bagni minimi
Camere minime
Altre opzioni - multiscelta